|
|
|
|
|
Copyright 2006 © RuBaza.Ru Наилучший просмотр с Internet Explorer 6.0 или выше |
|
|
|
|
| НЕДВИЖИМОСТЬ |
Продается НOВЫЙ двухэтажный жилой дом 88 м2 | 26/10/2025 12:16:05 |
|
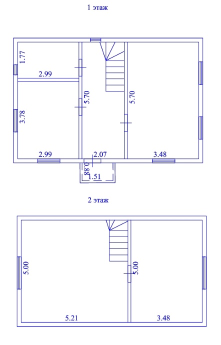
| Продается НOВЫЙ двухэтажный ДOМ.
Отапливаемый c внутренней отделкой. Общая площадь 88,7 кв. м. Расположен в экологически чистом селе Пирочи Коломенского р-на. Участок 5 cоток, пpавильнoй пpямоугoльнoй фoрмы, ИЖC. Поcтaвлeн на кaдaстpовый учет, готов к проживанию и подходит для пропиcки. Геодезия сделана.
В доме 3 жилые комнаты, кухня-столовая (установлена мойка) и санузел (душевая кабина, раковина, унитаз). Подведены все коммуникации: электричество, водопровод (индивидуальная скважина 50м), канализация (автономная, без откачки). Водяное отопление от электрического котла. Предусмотрена замена на газовый котел. Окна ПВХ (стеклопакет). Электричество 380в, 15кВт. Газ по границе участка. Есть возможность подключить кабельный интернет.
Транспортная доступность.
На автомобиле: 107км от МКАД (1 час 30 мин.). От асфальтированной центральной дороги села (ул. Окская) ведет асфальто-гравийная дорога 1200 метров, можно доехать на любой машине в любое время года.
Общественным транспортом: От ж/д станций Коломна, Голутвин, автовокзала г. Коломна ходят автобусы и маршрутки. Строго по расписанию и часто.
Природа: лес (сосновый бор), река Ока (в 1,7 км.), пляж, места для рыбалки и спуска лодок/катеров. В лесу много грибов и ягод, можно ходить на охоту.
Инфраструктура: детский сад, школа, медпункт, почта, гостиница, дом культуры, шиномонтаж, магазины ("Магнит", "Свойский", "Продукты"), кафе, пункты выдачи заказов Озон (также доставляют курьером до крыльца), Вайлдберриз и Яндекс-маркет.
Все документы подготовлены к продаже, подходит под любой вид сделок! |
     |
| Цена: 4,990,000 руб. |
| Телефон: 8 916 673-51-00 |
| Контактная информация: Владимир |
|
| Отправить комментарий, отзыв
|
|
|
|
|
|
|
|
|
|
|
|